Как отопить двухэтажный дом ~100 кв. Минимально необходимая мощность котла для дома 100 кв. м.
- Как отопить двухэтажный дом ~100 кв. Минимально необходимая мощность котла для дома 100 кв. м.
 - Однотрубная система отопления двухэтажного дома
 - Как развести отопление на два контура. Конструкция с естественной циркуляцией
 - Схема отопления двухэтажного дома твердотопливным котлом. Виды отопительных систем
 - Отопление 2 этажного дома с теплыми полами. Одна магистраль: плюсы и минусы
 - Какую систему отопления выбрать для двухэтажного дома. Особенности отопления двухэтажного дома
 - Отопление 2-этажного дома без насоса. Виды конструкций
 - Двухтрубная система отопления двухэтажного дома. Схемы отопления двухэтажного дома
 - Отопление двухэтажного дома двухконтурным котлом. Чем отличается двухконтурный котел
 
Как отопить двухэтажный дом ~100 кв. Минимально необходимая мощность котла для дома 100 кв. м.
Требования к мощности зависят от теплопотерь дома, котел попросту должен восполнять их. Для среднестатистического дома в климатической зоне Подмосковья с кладкой в 2 кирпича и высотой потолков 2,7 м теплопроизводительность рассчитывается из правила: 1 кВт мощности на каждые 10 м2отапливаемой площади. Также мы рекомендуем закладывать запас мощности в 10-30% в зависимости от используемого вида топлива.
Например, минимально необходимая мощность котла для дома площадью 100 кв. м. = 10 кВт * 1,2 = 12 кВт.
Часто производители не выпускают версии мощностью 12 кВт, ограничиваясь 10 и 15 кВт-ными котлами, поэтому можно выбрать 14 или 15 кВт модель, но не более. Котлоагрегат слишком большой мощности будет более часто тактовать (вкл/выкл), что снижает его ресурс.
Стандартных упрощенных расчетов достаточно для более, чем 95% случаев. Если же дом хорошо утеплен, находится в крайней южной или северной точке страны, имеет высокие потолки или большую площадь остекления, производятся более точные расчеты. Осуществить их можно с помощью калькулятора ниже.
Калькулятор для точных расчетов
Отопительный котел должен обеспечивать суммарную мощность радиаторов (мощность котла ≥ суммарной мощности радиаторов), поэтому для начала необходимо с помощью калькулятора рассчитать мощность радиаторов для каждого помещения отдельно. Просуммировав все полученные значения, вы получите минимально необходимую мощность котла.
Однотрубная система отопления двухэтажного дома
Применение однотрубной системы отопления, экономичной простой в монтаже и эксплуатации, долгое время было популярным среди проектировщиков массовых построек. В настоящее время однотрубная система или, как ее еще называют, «ленинградка», продолжает существовать, зачастую в дополненных и модернизированных вариантах.
Характеристика однотрубной системы
Однотрубная система отопления двухэтажного дома представляет собой магистраль, в которой отопительные приборы расположены в последовательном порядке. В первый по ходу радиатор попадает самый разогретый теплоноситель. Оставляя в каждом радиаторе часть своего тепла, далее движется все более охлажденная жидкость. С целью получения необходимого количества тепловой энергии радиаторы, расположенные на удалении от теплогенератора, должны иметь большую площадь, чем приближенные к источнику тепла приборы. (См. также: Системы отопления многоэтажных домов )

Современные однотрубные системы могут быть усовершенствованы с помощью балансировочных вентилей, регуляторов, термостатических клапанов. Эта дополнительная арматура позволяет производить регулирование теплоотдачи отдельных приборов, что делает систему более удобной в эксплуатации.
Варианты однотрубной схемы
Самым простым вариантом данной схемы являлось соединение труб, по которым теплоноситель стекал сверху вниз, без использования стояка. Однако такая схема была малоэффективной, поскольку стекающая сверху вода все более охлаждалась и внизу имела крайне невысокую температуру. Проблему пытались решить с помощью уменьшения количества секций на отопительных приборах на верхних этажах уменьшали, а на нижних увеличивали. Применение системы со стояком немного улучшило ситуацию с отоплением нижних этажей.
Если для многоэтажного дома однотрубная система являлась проблематичной, то для одно- и двухэтажных сооружений она практична и очень удобна. (См. также: Карта сайта )
Плюсами однотрубной системы являются малый расход материалов, возможность изготовления серии узлов одинаковых типоразмеров, что значительно упрощает проведение работ. При данной отопительной схеме система обладает гидравлической устойчивостью, что позволяет исключить пусконаладочные работы.
Виды однотрубного отопления
Вертикальная система отопления, имеющая верхнюю и нижнюю разводку труб, используется для высотных домов. Нижняя разводка может применяться в домах, не имеющих чердачного помещения.
Горизонтальная система однотрубного отопления может эффективно использоваться для одно- и двухэтажных помещений, особенно в случаях, когда один этаж является жилым, а второй нежилым. В таком случае хозяин может по собственному желанию отключать отдельные отопительные зоны, что позволяет избежать излишних трат на оплату отопления. (См. также: Однотрубная система отопления )

Горизонтальная система может быть проложена как над полом, так и в самом полу с применением теплоизоляции с целью исключения потерь тепла. Магистраль монтируется с небольшим уклоном по течению теплоносителя. Радиаторы, снабженные кранами для сброса воздуха, устанавливаются на одном уровне.
Изображенная на рис. 2 схема однотрубного отопления горизонтального типа имеет подающий стояк на второй этаж. По возможности, он должен быть врезан на первом этаже до первого отопительного прибора. В такой разводке двумя контурами регулировать температуру радиаторов можно поэтажно, с помощью кранов, которые установлены перед первой батареей на этаже.
Для частного двухэтажного дома эффективной отопительной схемой является горизонтальная система с использованием циркуляционного насоса.
Как развести отопление на два контура. Конструкция с естественной циркуляцией
Основной принцип функционирования системы таков: котел разогревает теплоноситель, который при увеличении температуры расширяется. Плотность жидкости при этом уменьшается.
Благодаря этому более холодная и потому плотная вода постепенно вытесняет разогретую жидкость вверх. Она поднимается до наивысшей точки системы, где начинает понемногу остывать и самотеком движется в радиаторы.
В батареях вода отдает накопленное тепло и, еще больше остывая и увеличивая свою плотность, движется к котлу. Очевидно, что теплоноситель проходит весь цикл самотеком, без использования дополнительного оборудования.
По причине того, что это происходит достаточно медленно, вытесняемый водой воздух успевает переместиться в пиковую верхнюю точку системы, что позволяет избавиться от излишнего завоздушивания.
На рисунке представлена простая схема двухтрубной отопительной системы с естественной циркуляцией теплоносителя. К ее характерным признакам относят трубопровод больших диаметров, благодаря которому уменьшается гидравлическое сопротивление, и обязательный уклон по ходу движения теплоносителя порядка 2 — 3 мм на погонный метр
Неоспоримым достоинством конструкции естественного типа считается продолжительный срок ее службы. Отсутствие подвижных элементов и циркуляционного насоса, а также замкнутый контур системы с конечным количеством минеральных солей и взвесей существенно продляет время ее эксплуатации.
Специалисты утверждают, что срок службы конструкций с естественной циркуляцией, оснащенных полимерными трубами и биметаллическими радиаторами может составить порядка пятидесяти лет.
Недостатком таких схем считается относительно невысокий перепад давлений. Нужно учитывать еще и определенное сопротивление, которое оказывают радиаторы и трубы движению теплоносителя. Поэтому радиус действия такой системы будет ограничен. Строительными нормами рекомендуется использовать отопление с естественной циркуляцией в радиусе не более 30 м.
Помимо этого, такая система имеет достаточно высокую инерцию, поэтому с растопки котла и до момента стабилизации температуры в отапливаемом здании проходит довольно большое количество времени.
Отрицательным моментом можно считать и то, что все трубы должны быть уложены под определенным уклоном, чтобы жидкость могла двигаться в нужном направлении. Отопительная система с естественной циркуляцией способна к саморегуляции.
Двухтрубная система с естественной циркуляцией способна к саморегуляции: чем ниже опускается температура в отапливаемом помещении, тем выше становится скорость движения теплоносителя
Чем ниже температура окружающей среды, тем выше скорость циркуляции теплоносителя. Кроме этого на продвижение жидкости по отопительному контуру влияют еще несколько факторов: сечение и материал труб разводки, радиус и количество поворотов в схеме двухтрубного отопления частного дома, а также наличием и видом установленной запорной арматуры.
Воздействуя на перечисленные факторы можно добиться наибольшей эффективности системы отопления.
Схема отопления двухэтажного дома твердотопливным котлом. Виды отопительных систем
Практика показывает, что большинство домовладельцев выдвигает к системе отопления двухэтажного дома 3 основных требования:
- В доме всегда должно быть тепло.
 - Минимальный расход энергоносителей – природного газа, дров, электричества и так далее.
 - Красота. Трубы, арматуру и приборы обогрева желательно убрать с глаз, чтобы не портили интерьер.
 
Требования перечислены в порядке важности с точки зрения пользователей. О стоимости монтажа мы поговорим в процессе рассмотрения систем.

Пожелания вполне понятны, но их следует увязать с техническими возможностями. Например, в отдаленных регионах случаются перебои с подачей электроэнергии либо отсутствует магистральный газ. Отсюда совет: сначала определите основное топливо и резервный энергоноситель, подберите котел и отопительные приборы . Отразите пожелания на бумаге – набросайте своими руками черновой проект.
Далеко не всегда хозяин дома может сам обустраивать инженерные сети – разрабатывать схемы, монтировать оборудование и трубы. В таком случае есть смысл обратиться к специалистам инженерной фирмы, которая занимается перечисленными работами. Например, в центральном регионе РФ услуги по установке котлов и монтажу систем отопления оказывает компания «ТеплоМосква».
Такой основательный подход позволит смонтировать схему отопления двухэтажного дома, которую не придется переделывать впоследствии. На выбор есть 5 вариантов систем:
- самотечная (она же – гравитационная и конвекционная);
 - однотрубная;
 - двухтрубная;
 - лучевая (иначе – коллекторная);
 - водяные контуры напольного обогрева, называемые теплыми полами.
 
Примечание. Первая схема подразумевает естественную циркуляцию теплоносителя по трубам и сообщающийся с атмосферой расширительный бак. В остальных реализован принцип принудительной циркуляции с помощью насоса и работа под давлением (используется закрытый мембранный бачок).

Пример чернового проекта отопления 2-этажного особняка
Указанные системы допускается комбинировать друг с другом. К примеру, на первом этаже сделать теплые полы, а на втором собрать лучевую схему. Теперь подробно рассмотрим каждый вариант по отдельности.
Отопление 2 этажного дома с теплыми полами. Одна магистраль: плюсы и минусы
Однотрубная система отопления двухэтажного дома — схема «ленинградка» — состоит из одной магистрали, проложенной по периметру здания горизонтально, над полом каждого этажа. Отопительные приборы подсоединяются к магистрали 2 концами, поочередно. Эта разновидность тепловой сети хорошо подходит для домов, где два этажа занимают небольшую площадь (до 80 м² каждый). Этому есть причины:
- Теплоноситель, поступающий в каждый последующий радиатор, имеет все более низкую температуру из-за подмешивания охлажденной воды из предыдущих батарей. Поэтому протяженность кольца ограничена 4-5 отопительными приборами.
 - Чтобы хорошо обогревать второй этаж и комнаты, где стоят последние по счету батареи, их теплоотдачу следует увеличить путем добора секций.
 - Горизонтальная сеть двухэтажного дома с естественной циркуляцией должна выполняться с большим уклоном (до 1 см на 1 м погонный трубы). Котел ставится в углублении, а на чердаке располагается расширительный бак, сообщающийся с атмосферой.
 
Ленинградская разводка отопления двухэтажного дома с принудительной подачей теплоносителя работает гораздо стабильнее и эффективнее, чем методом самотека. Для естественной циркуляции в частном доме лучше сделать вертикальные стояки, пронизывающие перекрытия и раздающие тепло радиаторам у окон. Подача воды в стояки осуществляется от горизонтального коллектора, проложенного в чердачном помещении, возврат в котел — по такой же магистрали, идущей над полом 1 этажа.
Как и в первом случае, открытый расширительный бак ставится на чердаке 2-этажного коттеджа, а магистрали прокладываются с уклоном. Если система отопления закрытая, то уклоны требуются минимальные (3 мм на погонный метр трубы), а мембранный бачок ставится в котельной.
Однотрубные разводки отопления двухэтажного дома хоть и недороги в монтаже, но сложны в расчете и исполнении.
Да и не всякому хозяину понравится, когда по части помещений проходят трубопроводы большого диаметра, их приходится прятать под короба.
Какую систему отопления выбрать для двухэтажного дома. Особенности отопления двухэтажного дома
Многие владельцы загородных двухэтажных домов ещё до окончания постройки начинают колебаться в выборе отопительной системы и основного нагревательного элемента. Газовой обогрев достаточно дорогой, но сам котел стоит несколько дешевле электрических аналогов. Кроме того, необходимость доставлять теплоноситель на второй этаж обусловливает потребность использования циркуляционного оборудования. Система с принудительной циркуляцией является обязательно в случае многоэтажных домов.

При этом не обязательно использовать воду как основной теплоноситель. Поскольку обычная проточная вода имеет множество минусов, которые мешают его использовать. К основным из них относят возможность разрыва труб в случае сильных морозов при отсутствии нагрева. Также, эта жидкость может привести к коррозии и забиванию радиаторов. Поэтому, в современном оборудовании гораздо чаще используют специальные незамерзающие составы — антифризы, которые не замерзают.
На текущий момент существует три основных вида разводки, каждая из которых имеет свои достоинства. Если их объединять с циркуляционной помпой, у них будет множество достоинств.
К таковым системам относят:
- Однотрубную.
 - Коллекторную или лучевую.
 - Двухтрубную.
 

Важным элементом в системе отопления двухэтажного дома является насос. Его обычно монтируют на ветви с подающий, либо обратный трубопровод, рядом с котлом. Это обеспечивает повышенную скорость циркуляции теплоносителя по трубам при нормальном давлении. Это позволяет увеличить скорость циркуляции в 2.5-5 раз. Это важно для домов с большой площадью, поскольку при использовании однотрубной разводки отопления теплоноситель будет слишком быстро остывать, и в помещениях, удаленных от котельной температура будет несколько ниже, чем в расположенных рядом.
Отопление 2-этажного дома без насоса. Виды конструкций
Отопительный контур — элементы, используемые в качестве системы отопления путем передачи тепловой энергии в воздушную среду. Популярнее всего системы, применяющие в качестве нагревательного источника котлы, бойлеры с подключением к водопроводу. Жидкость, пересекая нагревательные элементы, достигает заданной температуры, направляясь в отопительный контур.
Перемещение теплоносителя обеспечивается двумя методами:
- естественным;
 - принудительным.
 
С принудительной циркуляцией по трубам
Системы с естественным перемещением теплоносителя просты, надежны. Эффективность зависит от грамотного строения контура обогрева. В последнем случае внедряется насос, создающий давление. Теплоноситель двигается по трубопроводу.
Источники тепла для обогрева жидкости — котельное, бойлерное оборудование. Механизм работы основан на превращении одного вида энергии в тепловую. В зависимости от сырья, источника нагрева, котлы работают на газе, твердом топливе, электричестве, мазуте.
Все виды котельных агрегатов можно применить для обогрева частного дома. Популярны газовые, твердотопливные устройства.
В зависимости от соединения обогревательных устройств в отопительном контуре, различают: однотрубные, двухтрубные системы. Однотрубная система — когда батареи соединяются последовательно, вода, пересекая каждый элемент, возвращается в котел.
Однотрубная схема
Минус — неравномерность прогрева помещения. Каждый последующий радиатор получает меньшее количество тепловой энергии.
В двухтрубной схеме отопления батареи подключаются параллельно стояку. Отрицательная сторона системы — сложность конструктивного исполнения, большой расход материала. В многоэтажных зданиях можно использовать только двухтрубную систему отопления.
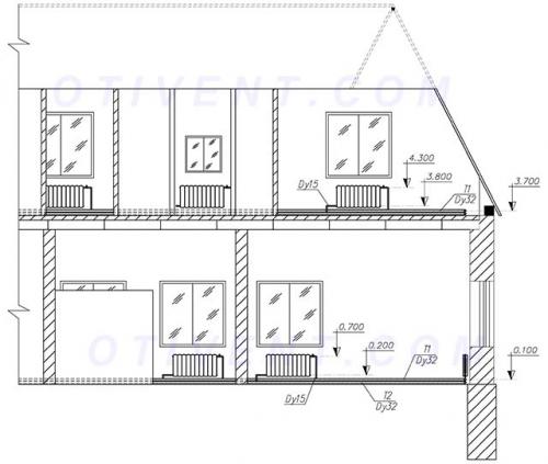
Двухтрубная система отопления двухэтажного дома. Схемы отопления двухэтажного дома
Количество реализаций системы отопления двухэтажного дома бесконечно, так как зависит от многих факторов: размеров дома, наличия бесперебойного электроснабжения, постоянства проживания в доме людей и т. д. Поэтому будет разумно рассмотреть несколько типовых схем, которые доказали свою эффективность.
Схема отопления дома с естественной циркуляцией
Название такой системы само говорит за себя – циркуляция теплоносителя в системе отопления происходит за счет естественных природных процессов. Работу такой системы можно рассмотреть на рисунке.

Система с естественной циркуляцией
Вода, подогретая в теплообменнике котла, уменьшается в плотности и вытесняется более холодной и плотной водой их обратной линии. Именно эта разница весов горячей и охлажденной воды обеспечивает циркуляцию в системе отопления. В самой верхней точке стояка горячей воды оборудуется расширительный бак, который дает воде расширяться при нагревании, позволяет контролировать уровень воды в системе и при необходимости производить подпитку. Кроме этого, весь воздух, который неизбежно будет присутствовать в системе, будет выходить в расширительный бак.
Узнайте, инструкции по промывке системы отопления , из нашей новой статьи.
Разводящие трубопроводы и обратные линии, называемые еще лежаками, для облегчения циркуляции воды всегда делают под уклонами: верхний лежак к радиаторам, а нижний – к котлу. В такой системе котел должен находиться в самой нижней точке. Подачу теплоносителя на радиаторы делают через стояки горячей воды, а слив охлажденной через обратные стояки.
Один из вариантов реализации двухтрубной системы отопления двухэтажного дома с естественной циркуляцией представлен на следующей схеме.

Один из вариантов реализации гравитационной системы отопления в двухэтажном доме
Следует обратить внимание в этой схеме на большое количество трубопроводов и их высокий условный проход — dу . Это объясняется тем, что в гравитационных системах для обеспечения циркуляции теплоносителя нужно минимизировать сопротивление, а это возможно только в трубах больших диаметров.
Отопление двухэтажного дома двухконтурным котлом. Чем отличается двухконтурный котел
Принципиальное отличие от одноконтурных аналогов — лишь в том, что тепло сгорания топлива может быть использовано не только для поддержания температуры теплоносителя в контуре отопления, но и для нагрева горячей воды для хознужд.
Уточнение: одноконтурные котлы тоже могут использоваться для нагрева воды в накопительной емкости путем косвенного нагрева — когда теплоноситель отдает часть своего тепла, проходя через вторичный теплообменник внутри теплоизолированной емкости. Ключевое отличие двухконтурного котла — в непосредственной передаче тепловой энергии от сгорающего топлива горячей воде.
Технические детали того, как реализована передача тепла в разных моделях котлов, нам не очень интересны. С точки зрения проектирования отопительной системы важна лишь одна особенность двухконтурного котла: когда расходуется горячая вода, теплоноситель перестает нагреваться.
Что это означает в практическом плане?
Для хорошо утепленных домов большой площади режим работы котла неважен вообще. Схема отопления с двухконтурным котлом будет точно такой же, как с одноконтурным. Дело в том, что дом имеет тепловую инерционность, и весьма большую.
Даже если котел будет в течение двух часов работать только на нагрев горячей воды (что в реальной жизни бывает крайне редко), температура в помещении изменится максимум на один-два градуса.
Если частный дом имеет небольшой объем внутренних помещений и/или плохо утеплен, становится важной тепловая инерционность системы отопления. Сами радиаторы и теплоноситель в контуре должны остывать по возможности долго
Результат достигается подбором радиаторов с большим внутренним объемом и увеличенным диаметром труб контура отопления.Наконец, если в силу каких-то причин планируется ОЧЕНЬ объемный и длительный расход горячей воды — от самой идеи двухконтурного котла лучше отказаться в пользу комбинации одноконтурного и нагревательной колонки. Никакая схема отопления не сможет обеспечить постоянную температуру в доме, если большую часть суток теплоноситель не нагревается.
Котел греет или теплоноситель, или горячую воду. Одновременная работа двух контуров невозможна.
Еще на один важный момент, вероятно, стоит обратить внимание. Систему с естественной циркуляцией проектировать с двухконтурным котлом не стоит
Почему?
После прекращения нагрева теплоносителя циркуляция в системе отопления очень быстро остановится. Ее возобновление займет весьма продолжительное время; в процессе повторного прогрева радиаторы в контуре будут нагреты очень неравномерно. Несколько таких циклов в течение дня сделают распределение температур в доме просто некомфортным.
Впрочем, ситуация изначально несколько надуманная просто потому, что большая часть современных двухконтурных котлов комплектуется циркуляционными насосами.
Однако: при проектировании системы отопления для одноэтажного дома не будет лишним заложить в проект возможность работы отопления за счет естественной циркуляции. Просто на случай длительного отключения электричества.