Схема отопления от газового котла в двухэтажном доме. Схемы разводки отопления
- Схема отопления от газового котла в двухэтажном доме. Схемы разводки отопления
- Однотрубная система отопления двухэтажного дома. Системы с естественной и принудительной циркуляцией
- Схема отопления двухэтажного дома твердотопливным котлом. Схемы отопления двухэтажного дома
- Отопление двухэтажного дома двухконтурным котлом. Составляющие системы отопления частного дома
- Отопление 2-этажного дома без насоса. Виды конструкций
- Схема отопления двухэтажного дома с настенным газовым котлом. Виды отопительных систем
- Какую систему отопления выбрать для двухэтажного дома. Особенности отопления двухэтажного дома
Схема отопления от газового котла в двухэтажном доме. Схемы разводки отопления
В двухэтажных домах используют такие схемы разводки отопления: однотрубная, двухтрубная, а также коллекторная. При однотрубной достаточно сложно регулировать температуру в здании. Это происходит от того, что нет возможности перекрыть один из радиаторов, когда все остальные отопительные приборы работают. Поэтому, когда горячая вода переходит от одной батареи к другой, она всё больше охлаждается.
Так как у каждого агрегата отопления есть по две трубы, по одной идёт горячая вода, а по другой – уже остывшая. Ещё эта система отличается от однотрубной тем, что у неё иной порядок подключения приборов отопления. Специалисты рекомендуют перед каждым радиатором монтировать регулировочный бак.
Схема двухтрубной системы отопления
Для того чтобы в двухэтажном доме была нормальная циркуляция, достаточно дистанции между центром котла и верхней точкой подающей магистрали, при этом можно ставить расширительный бак на верхнем этаже, а не на чердаке. А трубу подачи прокладывают под потолком или под подоконниками.
Поэтому рекомендуется ставить дополнительный байпас вместе с циркуляционным насосом, что значительно сэкономит время при запуске такой системы, как схема отопления двухэтажного загородного дома, и при этом в здании будет более равномерно распределяться тепло.
Схема отопления с байпасом и насосом
Кроме установки радиаторов, в двухэтажном доме с использованием котла вместе с встроенным насосом циркуляции можно устанавливать и систему «тёплый пол», подключать полотенцесушитель одновременно на двух этажах. Специалисты советуют стояки второго этажа подключать возле самого котла.
Однотрубная система отопления двухэтажного дома. Системы с естественной и принудительной циркуляцией
Раньше план систем однотрубного отопления для частных домов имел расширительный бак под потолком, в него поступала горячая вода из печи или другого отопительного агрегата, а дальше самотеком текла по трубам в радиаторы. Система была достаточно проста и надежна и успешно реализовывалась мастерами при модернизации печной системы отопления в небольших одноэтажных домах с длиной трубной обвязки в пределах 30 м (а раньше большинство домов имели площадь в пределах 50-70 м² и имели форму близкую к квадрату).
Для нагрева воды в топку печи монтировали трубы, которые и служили теплообменниками между теплоносителем и огнем в топке. Но прогресс не стоит на месте, и на смену печам пришли угольные, газовые и дровяные котлы. Дома начали обрастать отапливаемыми кухнями, верандами, ванными – площадь начала увеличиваться, системы – усложняться, и схема перестала работать.

Прогресс не стоит на месте, и современные автоматические котлы все выпускаются со встроенными циркуляционными насосами. Для отопительных агрегатов, которые сложно автоматизировать (твердотопливные котлы) насос устанавливается отдельно. Основная причина – сильный перегрев насоса при сильном горении топлива. Система с принудительной циркуляцией позволяет реализовать самые сложные схемы отопления, в том числе и теплый пол – при естественной циркуляции обогрев пола просто не будет работать.
Еще одной причиной применения принудительной циркуляции теплоносителя является увеличение площади и этажности строящихся домов (двухэтажный дом или дом с мансардой стоит дешевле такого же по площади одноэтажного).
Схема отопления двухэтажного дома твердотопливным котлом. Схемы отопления двухэтажного дома
Количество реализаций системы отопления двухэтажного дома бесконечно, так как зависит от многих факторов: размеров дома, наличия бесперебойного электроснабжения, постоянства проживания в доме людей и т. д. Поэтому будет разумно рассмотреть несколько типовых схем, которые доказали свою эффективность.
Схема отопления дома с естественной циркуляцией
Название такой системы само говорит за себя – циркуляция теплоносителя в системе отопления происходит за счет естественных природных процессов. Работу такой системы можно рассмотреть на рисунке.

Система с естественной циркуляцией
Вода, подогретая в теплообменнике котла, уменьшается в плотности и вытесняется более холодной и плотной водой их обратной линии. Именно эта разница весов горячей и охлажденной воды обеспечивает циркуляцию в системе отопления. В самой верхней точке стояка горячей воды оборудуется расширительный бак, который дает воде расширяться при нагревании, позволяет контролировать уровень воды в системе и при необходимости производить подпитку. Кроме этого, весь воздух, который неизбежно будет присутствовать в системе, будет выходить в расширительный бак.
Узнайте, инструкции по промывке системы отопления , из нашей новой статьи.
Разводящие трубопроводы и обратные линии, называемые еще лежаками, для облегчения циркуляции воды всегда делают под уклонами: верхний лежак к радиаторам, а нижний – к котлу. В такой системе котел должен находиться в самой нижней точке. Подачу теплоносителя на радиаторы делают через стояки горячей воды, а слив охлажденной через обратные стояки.
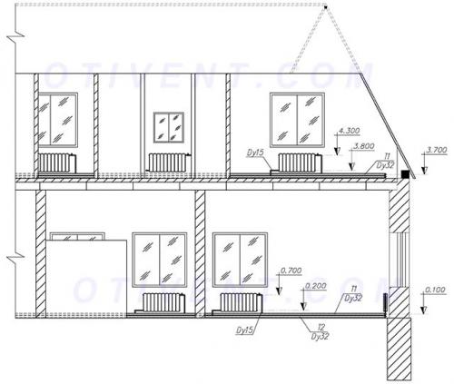
Один из вариантов реализации двухтрубной системы отопления двухэтажного дома с естественной циркуляцией представлен на следующей схеме.

Один из вариантов реализации гравитационной системы отопления в двухэтажном доме
Следует обратить внимание в этой схеме на большое количество трубопроводов и их высокий условный проход — dу . Это объясняется тем, что в гравитационных системах для обеспечения циркуляции теплоносителя нужно минимизировать сопротивление, а это возможно только в трубах больших диаметров.
Отопление двухэтажного дома двухконтурным котлом. Составляющие системы отопления частного дома
Котел — генератор тепла в системе отопления и горячего водоснабжения. Усредненный норматив мощности 100 Вт на 1 м 2 площади при условии, что высота утепленного помещения не более 3 метров. Предусматривают запас до 20% от производительности котла на неучтенные потери. Горячее водоснабжение требует увеличения резерва мощности от 50%.
Сводная таблица, с вариантами типовых теплотехнических расчетов мощности котла, позволяет сравнить ориентировочные результаты подбора и существующие модели теплогенераторов.

Варианты типовых теплотехнических расчетов мощности котла
Котлы могут работать на дизельном топливе, коксе, угле, дровах, торфе, пеллетах, природном газе или электричестве. Выбор вида топлива зависит от его доступности. Более 70% потребителей используют газовые котлы. Электрический котел (конвектор ) рассматривают как резервный или комбинированный вариант.

Напольный котел лучше устанавливать в отдельном специально оборудованном помещении
Чугунные или стальные генераторы тепловой энергии производят в напольном и настенном исполнении. Стационарные напольные котлы устанавливают в отдельном помещении, которое оборудуют бойлером, расширительным баком, дымоходом и системой принудительной вентиляции (согласно нормам и требованиям газовой службы).
Настенным газовым котлам дымоход и отдельное помещение не требуются. Кислород для сжигания газа поступает по гибкой гофрированной трубе. Одноконтурный агрегат предназначен для отопления. Использование схемы отопления двухэтажного дома с двухконтурным котлом обеспечивает обогрев и горячее водоснабжение.

Настенным газовым котлам дымоход и отдельное помещение не требуются
Способы передачи тепловой энергии котла в систему: принудительный оборот теплоносителя и естественная циркуляция (энергонезависимый способ отопления). Конструкция котла с двумя контурами содержит встроенный циркуляционный насос и закрытый расширительный бак.
Носители тепловой энергии в системе отопления . вода, антифриз или электролитный теплоноситель для электродных котлов проточного типа.
Вода имеет высокую теплоемкость и плотность, но требует соблюдения постоянного температурного режима помещения зимой. Собственники жилья, которые пользуются домом нерегулярно, предпочитают в качестве теплоносителя антифриз.

Схема обустройства системы отопления с расширительным баком открытого типа
Выбор типа разводки отопления и вида теплоносителя производят на стадии разработки проекта. Вязкость, коэффициент расширения и теплоемкость антифриза замедляют теплообменный процесс и снижают теплосъем радиаторов. Для теплоносителя «незамерзайка» требуется увеличить мощность насосов и проходное сечение системы.
Важно! Присутствие в антифризе этиленгликоля ограничивает его применение в котлах двухконтурного типа. Некоторые присадки разрушают детали из полипропилена, чугуна, цветных металлов, резины.

Напольный радиатор, установленный возле двери, может выполнять функцию тепловой завесы
Обогревательный прибор — стальной, алюминиевый, комбинированный, чугунный или анодированный радиатор (батарея ), который отдает свое тепло и обеспечивает в помещении благоприятный микроклимат.
Теплоотдача и инерционность зависят от материала и размеров прибора. Длину конструкций батарей изменяют, регулируя необходимое количество секций. Воздухоотводчик (кран Маевского) и вентиль-терморегулятор, установленный на входе теплоносителя в отопительный прибор, обеспечивают равномерный расчетный теплосъем. Запорный вентиль на отводящем патрубке необходим для технического обслуживания при эксплуатации.

Отопление 2-этажного дома без насоса. Виды конструкций
Контур отопления — это совокупность элементов, предназначенных для обогревания жилища путём передачи тепла воздуху. Наиболее распространённым видом отопления является система, использующая в качестве источника нагрева котлы или бойлеры, подключённые к водопроводу. Вода, проходя через нагреватель, достигает определённой температуры, а после направляется в отопительный контур.
В системах с теплоносителем, в качестве которого используется вода, циркуляция может быть организована двумя путями:
- естественным;
- принудительным.
Контура с естественным движением воды просты и надёжны, но для их эффективного использования нужна правильно построенная система. Для второго же способа используется насосное оборудование, которое, создавая давление, заставляет воду перемещаться.
В качестве источника тепла, служащего для нагревания воды, используются котлы (бойлеры). Их принцип действия основан на превращении определённого для них рода энергии в тепло с последующей его передачей теплоносителю. По типу источника нагрева котельное оборудование бывает газовым, твердотопливным, электрическим или мазутным.
Любой из этих видов котлов может использоваться в системе отопления частного дома без насоса, но наиболее популярным является газовый и твердотопливный.
По типу соединения элементов контура система отопления может быть однотрубной или двухтрубной . Если все приборы контура включены относительно друг друга последовательно, то есть теплоноситель проходит по порядку все элементы и возвращается в котёл, то такая система называется однотрубной. Её существенным недостатком является неравномерность прогрева. Это связано с тем, что на каждом элементе происходит потеря какого-то количества тепла, поэтому разница температур котла может быть существенной.
Система двухтрубного типа подразумевает параллельное подключение радиаторов к стояку. К недостаткам такого подключения относят осложнение конструкции и увеличенный в два раза расход материала по сравнению с однотрубной системой. Но построение контура обогрева для больших многоэтажных помещений выполняется только таким соединением.
Схема отопления двухэтажного дома с настенным газовым котлом. Виды отопительных систем
Практика показывает, что большинство домовладельцев выдвигает к системе отопления двухэтажного дома 3 основных требования:
- В доме всегда должно быть тепло.
- Минимальный расход энергоносителей – природного газа, дров, электричества и так далее.
- Красота. Трубы, арматуру и приборы обогрева желательно убрать с глаз, чтобы не портили интерьер.
Требования перечислены в порядке важности с точки зрения пользователей. О стоимости монтажа мы поговорим в процессе рассмотрения систем.

Пожелания вполне понятны, но их следует увязать с техническими возможностями. Например, в отдаленных регионах случаются перебои с подачей электроэнергии либо отсутствует магистральный газ. Отсюда совет: сначала определите основное топливо и резервный энергоноситель, подберите котел и отопительные приборы . Отразите пожелания на бумаге – набросайте своими руками черновой проект.
Далеко не всегда хозяин дома может сам обустраивать инженерные сети – разрабатывать схемы, монтировать оборудование и трубы. В таком случае есть смысл обратиться к специалистам инженерной фирмы, которая занимается перечисленными работами. Например, в центральном регионе РФ услуги по установке котлов и монтажу систем отопления оказывает компания «ТеплоМосква».
Такой основательный подход позволит смонтировать схему отопления двухэтажного дома, которую не придется переделывать впоследствии. На выбор есть 5 вариантов систем:
- самотечная (она же – гравитационная и конвекционная);
- однотрубная;
- двухтрубная;
- лучевая (иначе – коллекторная);
- водяные контуры напольного обогрева, называемые теплыми полами.
Примечание. Первая схема подразумевает естественную циркуляцию теплоносителя по трубам и сообщающийся с атмосферой расширительный бак. В остальных реализован принцип принудительной циркуляции с помощью насоса и работа под давлением (используется закрытый мембранный бачок).

Пример чернового проекта отопления 2-этажного особняка
Указанные системы допускается комбинировать друг с другом. К примеру, на первом этаже сделать теплые полы, а на втором собрать лучевую схему. Теперь подробно рассмотрим каждый вариант по отдельности.
Какую систему отопления выбрать для двухэтажного дома. Особенности отопления двухэтажного дома
Многие владельцы загородных двухэтажных домов ещё до окончания постройки начинают колебаться в выборе отопительной системы и основного нагревательного элемента. Газовой обогрев достаточно дорогой, но сам котел стоит несколько дешевле электрических аналогов. Кроме того, необходимость доставлять теплоноситель на второй этаж обусловливает потребность использования циркуляционного оборудования. Система с принудительной циркуляцией является обязательно в случае многоэтажных домов.

При этом не обязательно использовать воду как основной теплоноситель. Поскольку обычная проточная вода имеет множество минусов, которые мешают его использовать. К основным из них относят возможность разрыва труб в случае сильных морозов при отсутствии нагрева. Также, эта жидкость может привести к коррозии и забиванию радиаторов. Поэтому, в современном оборудовании гораздо чаще используют специальные незамерзающие составы — антифризы, которые не замерзают.
На текущий момент существует три основных вида разводки, каждая из которых имеет свои достоинства. Если их объединять с циркуляционной помпой, у них будет множество достоинств.
К таковым системам относят:
- Однотрубную.
- Коллекторную или лучевую.
- Двухтрубную.

Важным элементом в системе отопления двухэтажного дома является насос. Его обычно монтируют на ветви с подающий, либо обратный трубопровод, рядом с котлом. Это обеспечивает повышенную скорость циркуляции теплоносителя по трубам при нормальном давлении. Это позволяет увеличить скорость циркуляции в 2.5-5 раз. Это важно для домов с большой площадью, поскольку при использовании однотрубной разводки отопления теплоноситель будет слишком быстро остывать, и в помещениях, удаленных от котельной температура будет несколько ниже, чем в расположенных рядом.